Wohnüberbauung Schwandenstrasse

Schliern

Schwandenstrasse 236

Die beiden Parzellen, mit je einem Einfamilienhaus, stehen am Dorfrand von Schliern bei Bern, mit unverbaubarer Weitsicht ins Schwarzenburgerland.
Die Parzellen sind stark unternutzt und sollen, mittels zweier Mehrfamilienhäuser à je sechs Wohnungen inkl. Einstellhalle, verdichtet werden.

Die identischen Mehrfamilienhäuser übernehmen die Massstäblichkeit des Quartiers, die städtebauliche Setzung nutzt die örtlichen Gegebenheiten optimal aus. Mit der Ausrichtung zur Schwandenstrasse und dementsprechend in Richtung Südwesten profitieren sämtliche Wohnungen von der Aussicht sowie der Nachmittags- und Abendsonne.
Die beiden Baukörper sind entsprechend der Mehrfamilienhäuser parallel zur rückwärtigen Parzellengrenze ausgerichtet. Dies führt zu einer leichten Abdrehung zur Schwandenstrasse.
Die Erschliessung erfolgt über die Nordseite. Zwischen den beiden Neubauten entsteht eine Spiel- und Gemeinschaftsfläche als verbindendes Element, mit Bäumen als Schattenspender im Sommer.

Beide Gebäude sind in Holzelementbauweise erstellt und Minergie-A zertifiziert.
Mit einer Photovoltaikanlage auf beide Dächern, wird eine energetische Unabhängigkeit durch Strom-Überproduktion erreicht. Zur Nutzung des produzierten Stroms, wird ein Zusammenschluss zum Eigenverbrauch (ZEV) gebildet. Die Wärmeerzeugung erfolgt über einen externen Holzschnitzel-Wärmeverbund in unmittelbarer Nähe der Parzellen.
Eine Komfortlüftung übernimmt die kontinuierliche Frischluftversorgung im ganzen Haus.

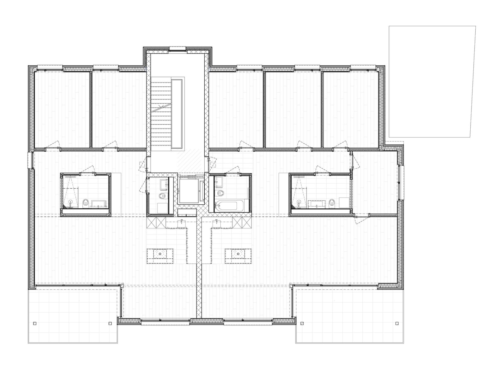
Pro Haus entstehen drei 3.5-Zimmer-Wohnungen und drei 5.5-Zimmer-Wohnungen.
Die Schlafzimmer sind alle an der ruhigen Nordfassade angegliedert. Ein Korridor erschliesst diese Zimmer und das Badezimmer. Dunkle Ecken wurden vermieden in dem in der kleinen Wohnung ein Fenster und in den grossen Wohnungen eine Tür zum Jokerzimmer, Licht in den Korridor bringen.
Auch in den grossen Nasszellen im Kern der Wohnungen, sorgen Glasstreifen für natürliches Licht im Raum.
Präzise gesetzte Zimmertüren sorgen für Durchblicke von der Nord- zur Südseite, Um- und Rundläufe bilden spannende Raumbezüge sowie eine hohe Konnektivität, die wohnungsinternen Verkehrsflächen sind auf ein Minimum reduziert worden und gleichwertige / -grosse Zimmer bieten vielseitige, flexible Nutzbarkeiten.

Auftraggeber:in

Privat

Realisierung

2023-2024

Leistungen

Planung | Ausschreibung | Ausführung | Kostenkontrolle | Terminkontrolle | Bauleitung

Umfang

Neubau von zwei Mehrfamilienhäuser in Holzelementbauweise | Minergie-A Zertifiziert | 3x 3.5-Zi-Whg | 3x 5.5-Zi-Whg | Einstellhalle | Umgebungsgestaltung | Farb- und Materialisierungskonzept 

Schwandenstrasse 156
Schwandenstrasse 35 02 002 3 HDR
Schwandenstrasse 255
Schwandenstrasse 261
Schwandenstrasse 221
Schwandenstrasse 195
Schwandenstrasse 211
Schwandenstrasse 216
Schwandenstrasse 246
Schwandenstrasse 35 02 002 31 HDR
Schwandenstrasse 35 02 002 25 HDR
Schwandenstrasse 76
Schwandenstrasse 116
Schwandenstrasse 66
Acq 2133 Grundriss

Möchten Sie Cookies zulassen?

Um unsere Website für Sie optimal zu gestalten und fortlaufend verbessern zu können, verwenden wir Cookies. Weitere Infos zu Cookies und Datenschutz, finden Sie hier.